藤沢市宮原貸倉庫 倉見の賃貸倉庫!|貸倉庫・貸工場は有限会社アイエヌジー・トゥエンティーワン

一都三県の貸工場・貸倉庫ならアイエヌジー・トゥエンティワン
お問い合わせ
045-545-2771 9:00〜21:00 / メールは24時間承っております
TOPページ
貸し倉庫・貸し工場検索
藤沢市の貸し倉庫・貸し工場情報一覧
藤沢市宮原貸倉庫 倉見の賃貸倉庫

藤沢市宮原貸倉庫  倉見の賃貸倉庫

賃料(坪単価) 423,500円(6,061円) 管理費 / 共益費 / 33,000円
敷金 / 礼金 - / 2ヶ月 仲介手数料 1.1ヶ月
保証金 / 償却 5ヶ月 / - 所在階 / 階数 2階建1棟
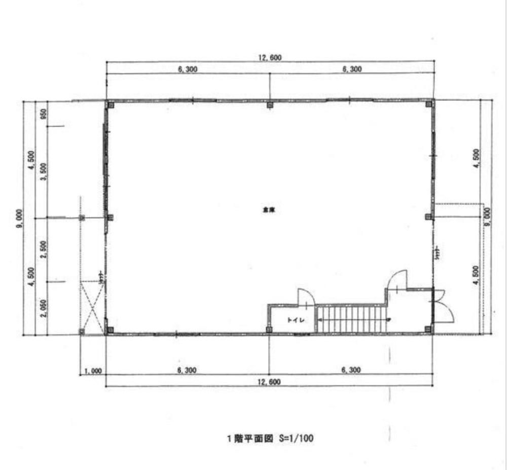
構造 軽量鉄骨造 用途 / 面積 倉庫 / 231m2(69.87坪)
交通
JR相模線 「倉見駅」 徒歩41分
お問い合わせNO RHS-k464
築年月 1995年3月 所在地 神奈川県藤沢市宮原1442   周辺MAP
※事業用物件は 賃料・共益費・管理費等が税別表記です
【建物外観】  【間取】  【その他部屋・スペース】  【間取】  【その他部屋・スペース】  【建物外観】  【その他部屋・スペース】  【その他部屋・スペース】 
【建物外観】 
【間取】 
【その他部屋・スペース】 
【間取】 
【その他部屋・スペース】 
【建物外観】 
【その他部屋・スペース】 
【その他部屋・スペース】 
  • 【建物外観】 
  • 【間取】 
  • 【その他部屋・スペース】 
  • 【間取】 
  • 【その他部屋・スペース】 
  • 【建物外観】 
  • 【その他部屋・スペース】 
  • 【その他部屋・スペース】 

【スタッフからのイチオシポイント!】藤沢市宮原貸倉庫

神奈川県藤沢市宮原1442【JR相模線 倉見駅徒歩41分】にある賃貸倉庫です。
1995年3月築の2階建1棟です。物件の広さは231m2です。
※物件のもっと詳しい内容や入居時期、諸条件のご相談など、ホームページには掲載が間に合わず載せきれていない情報もございます。
気になることが御座いましたらお気軽にメールにてお問い合わせください。
045-545-2771
有限会社アイエヌジー・トゥエンティーワン
お問い合わせNO:RHS-k464
お問い合わせの際はこちらのお問い合わせNOを
担当者にお伝えください。

物件詳細情報

現況 空家 入居可能日 即入居可
取引態様 媒介 契約態様 -
契約期間 3年 駐車場・近隣駐車場
その他費用

設備詳細情報

用途 倉庫 造作
天井高 2.5m以上 エレベーター
業種
特 徴
設備・条件・その他
  • シャッター
  • トイレ
  • エアコン2台
  • 駐車場5台以上
備 考 リフォーム履歴 ■水回り:2024年05月 トイレ  2階事務所トイレ新設
■内装:2024年05月 壁・天井(クロス・塗装等)

駐車場 パーキングマップにて付近にある駐車場を検索 有 無料 空き5台  備考:表側3台 裏側縦列2台分込み他近隣駐車場 7〜8台あり1台あたり5000円(税別)

情報更新日:2025年03月17日 次回更新予定日:2025年03月31日
※各種情報と差異がある場合は現況優先となります

物件周辺地図

045-545-2771
有限会社アイエヌジー・トゥエンティーワン
お問い合わせNO:RHS-k464
お問い合わせの際はこちらのお問い合わせNOを
担当者にお伝えください。

この物件に似た物件をチェック!


閲覧した物件の履歴

閲覧した物件の一覧を見る

最近検索した条件一覧



気になったら今すぐ!カンタンお問合せ



お問合せ内容必須
【備考欄】
希望条件・来店希望日・その他質問がございましたらご記入ください。
お客様情報
会社名/ ご担当者名必須
連絡先必須 メールアドレス
電話番号



※ご入力いただいたお客さまの個人情報は、「個人情報の取扱いについて」に基づき適正に取り扱います。必ずお読みになり、同意の上お問い合わせください。




※ご記入いただいたメールアドレス宛てに、お問合せ内容の確認メールをお送りいたします。
※Yahoo!メールなどのフリーメールをご利用の場合、迷惑メールフォルダに入る場合があります。
 迷惑メールのフォルダ・設定等をご確認下さい。
 


▲ページのTOPへ戻る


お問合せはこちら

有限会社アイエヌジー・トゥエンティーワン 045-545-2771

お問い合わせNO:RHS-k464
お問合せの際はこちらの番号を
担当者にお伝えください

NEWS&BLOGお知らせ・ブログ

  • 成約事例
  • ご契約の流れ
  • よくある質問

ABOUT US 当社について

  • オーナー様向け貸し倉庫・貸し工場管理ページ
  • 貸し倉庫、貸し工場カタログ
  • 会社概要
  • お知らせ・ブログ
  • お問い合わせ
有限会社アイエヌジー・
トゥエンティーワン
045-545-2771

〒223-0057
横浜市港北区
新羽町1089-1

営業時間:9:00〜21:00
メールは24時間承っております

貸し倉庫・工場カタログ
オーナー様向けページ