町田市野津田町貸倉庫 古淵の賃貸倉庫!|貸倉庫・貸工場は有限会社アイエヌジー・トゥエンティーワン

一都三県の貸工場・貸倉庫ならアイエヌジー・トゥエンティワン
お問い合わせ
045-545-2771 9:00〜21:00 / メールは24時間承っております
TOPページ
貸し倉庫・貸し工場検索
町田市の貸し倉庫・貸し工場情報一覧
町田市野津田町貸倉庫 古淵の賃貸倉庫

町田市野津田町貸倉庫  古淵の賃貸倉庫

賃料(坪単価) 1,320,000円(4,609円) 管理費 / 共益費 /
敷金 / 礼金 - / 1ヶ月 仲介手数料 1.1ヶ月
保証金 / 償却 3ヶ月 / 解約時 1ヶ月 所在階 / 階数 4階建て1棟
構造 S造(鉄骨造) 用途 / 面積 倉庫 / 946.76m2(286.39坪)
交通
JR横浜線 「古淵駅」 徒歩57分
お問い合わせNO RHS-t469
築年月 2001年5月 所在地 東京都町田市野津田町120-1   周辺MAP
※事業用物件は 賃料・共益費・管理費等が税別表記です
【建物外観】  【間取】  【建物外観】  【その他部屋・スペース】  【その他部屋・スペース】  【その他部屋・スペース】  【その他部屋・スペース】  【その他部屋・スペース】 
【建物外観】 
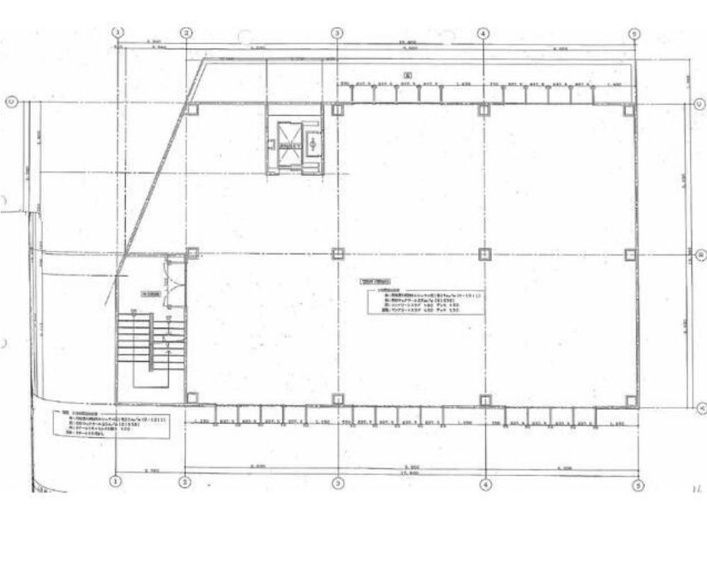
【間取】 
【建物外観】 
【その他部屋・スペース】 
【その他部屋・スペース】 
【その他部屋・スペース】 
【その他部屋・スペース】 
【その他部屋・スペース】 
  • 【建物外観】 
  • 【間取】 
  • 【建物外観】 
  • 【その他部屋・スペース】 
  • 【その他部屋・スペース】 
  • 【その他部屋・スペース】 
  • 【その他部屋・スペース】 
  • 【その他部屋・スペース】 

【スタッフからのイチオシポイント!】町田市野津田町貸倉庫

東京都町田市野津田町120-1【JR横浜線 古淵駅徒歩57分】にある賃貸倉庫です。
2001年5月築の4階建て1棟です。物件の広さは946.76m2です。
※物件のもっと詳しい内容や入居時期、諸条件のご相談など、ホームページには掲載が間に合わず載せきれていない情報もございます。
気になることが御座いましたらお気軽にメールにてお問い合わせください。
045-545-2771
有限会社アイエヌジー・トゥエンティーワン
お問い合わせNO:RHS-t469
お問い合わせの際はこちらのお問い合わせNOを
担当者にお伝えください。

物件詳細情報

現況 賃貸中 入居可能日 相談
取引態様 媒介 契約態様 定期借家
契約期間 5年 駐車場・近隣駐車場
その他費用

設備詳細情報

用途 造作
天井高 エレベーター
業種
特 徴
設備・条件・その他
  • 駐車5台以上
  • トイレ2ヶ所
  • トイレ
  • エアコン2台
  • 準工業・工業・工業専用地域
  • 大型車可
  • 前面道路6m以上
  • 駐車場5台以上
備 考 ※再契約料:新賃料の1ヶ月分
※原則、再契約を行うことのできる物件です

賃貸保証 加入要 保証会社【エルズサポート】加入必須。初回保証料:月額賃料等の80% 年間保証料:20,000円 引落手数料:300円/月(税別)
保険等加入 加入要 / Chubb少額短期保険保険 1年間 14,600円
情報更新日:2025年05月01日 次回更新予定日:2025年05月15日
※各種情報と差異がある場合は現況優先となります

物件周辺地図

045-545-2771
有限会社アイエヌジー・トゥエンティーワン
お問い合わせNO:RHS-t469
お問い合わせの際はこちらのお問い合わせNOを
担当者にお伝えください。

この物件に似た物件をチェック!


閲覧した物件の履歴

閲覧した物件の一覧を見る

最近検索した条件一覧



気になったら今すぐ!カンタンお問合せ



お問合せ内容必須
【備考欄】
希望条件・来店希望日・その他質問がございましたらご記入ください。
お客様情報
会社名/ ご担当者名必須
連絡先必須 メールアドレス
電話番号



※ご入力いただいたお客さまの個人情報は、「個人情報の取扱いについて」に基づき適正に取り扱います。必ずお読みになり、同意の上お問い合わせください。




※ご記入いただいたメールアドレス宛てに、お問合せ内容の確認メールをお送りいたします。
※Yahoo!メールなどのフリーメールをご利用の場合、迷惑メールフォルダに入る場合があります。
 迷惑メールのフォルダ・設定等をご確認下さい。
 


▲ページのTOPへ戻る


お問合せはこちら

有限会社アイエヌジー・トゥエンティーワン 045-545-2771

お問い合わせNO:RHS-t469
お問合せの際はこちらの番号を
担当者にお伝えください

NEWS&BLOGお知らせ・ブログ

  • 成約事例
  • ご契約の流れ
  • よくある質問

ABOUT US 当社について

  • オーナー様向け貸し倉庫・貸し工場管理ページ
  • 貸し倉庫、貸し工場カタログ
  • 会社概要
  • お知らせ・ブログ
  • お問い合わせ
有限会社アイエヌジー・
トゥエンティーワン
045-545-2771

〒223-0057
横浜市港北区
新羽町1089-1

営業時間:9:00〜21:00
メールは24時間承っております

貸し倉庫・工場カタログ
オーナー様向けページ