お問い合わせ
葛飾区東四つ木貸倉庫倉庫
物件詳細ページへ |
||||||||||||||||||
八広6丁目貸工場工場
2F貸主住居の電気ガス水道メーターが分けられていない為、要相談。 天井高3.9mです! 物件詳細ページへ |
||||||||||||||||||
東墨田工場倉庫工場
工業地域第一種特別工業地区 元皮革工場として利用していました。 物件詳細ページへ |
||||||||||||||||||
東墨田工場倉庫倉庫
工業地域第一種特別工業地区 元皮革工場として利用していました。 物件詳細ページへ |
||||||||||||||||||
高砂1丁目貸倉庫事務所倉庫
敷地内駐車場付き倉庫事務所です! 物件詳細ページへ |
||||||||||||||||||
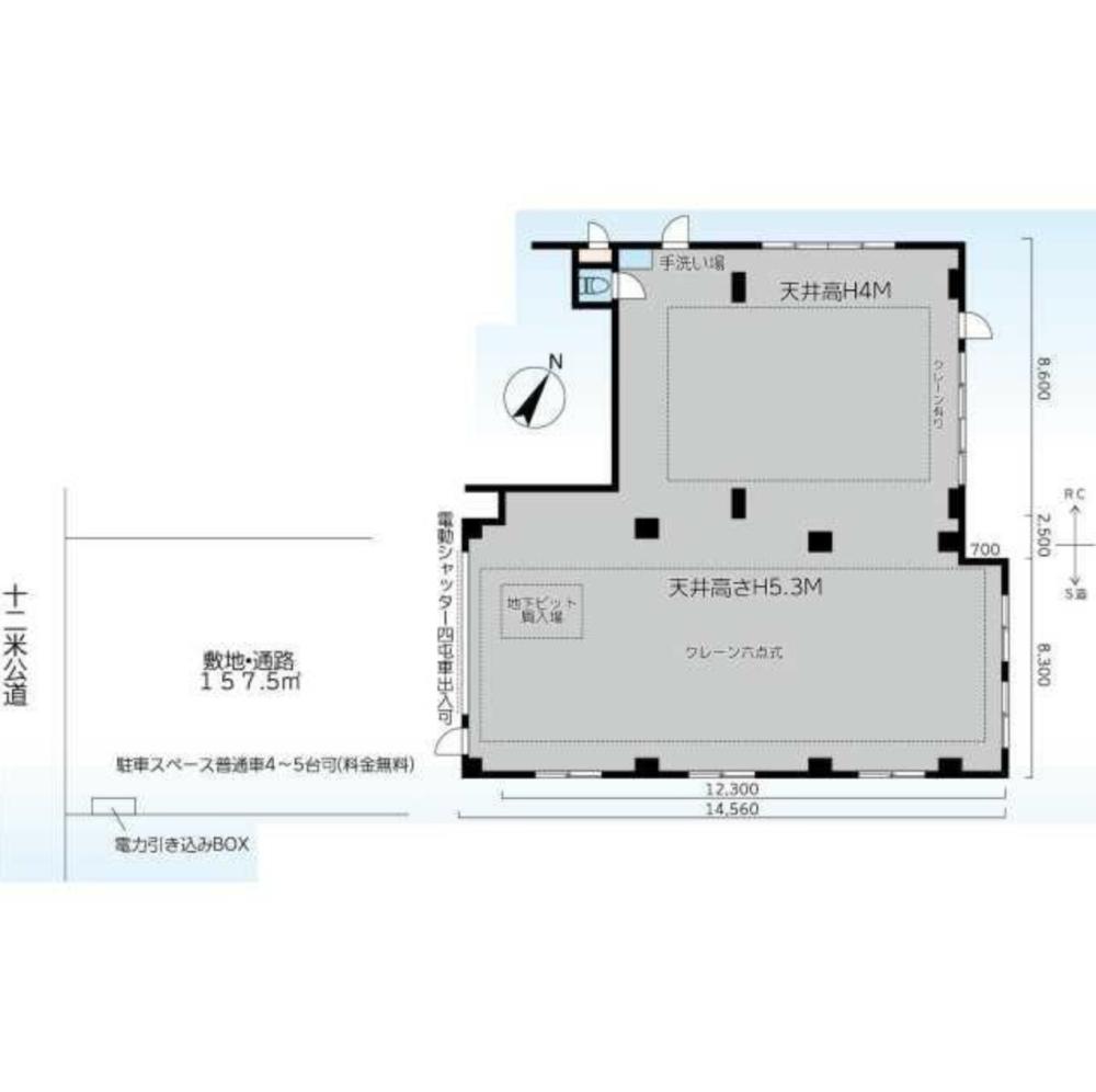
グレースハイム内 貸工場工場
葛飾区東立石の貸工場物件です!敷地に4t車1台出入可・普通車4〜5台可能 天井高4m以上で電動シャッター有 物件詳細ページへ |
||||||||||||||||||
葛飾区東四つ木1丁目貸倉庫倉庫
工場地域内にある貸倉庫、作業所です! 物件詳細ページへ |
||||||||||||||||||
東墨田大型貸倉庫倉庫
東京都墨田区東墨田にある貸倉庫物件になります!搬入出に便利な屋根付き駐車スペースあり! トイレ・流し台あり 再契約相談可能 物件詳細ページへ |
||||||||||||||||||
「平井大橋IC」から2.5km3階冷凍・冷蔵設備ありです! 2階部分居住スペース有でトイレ・シャワーなどがあります。